装修案例
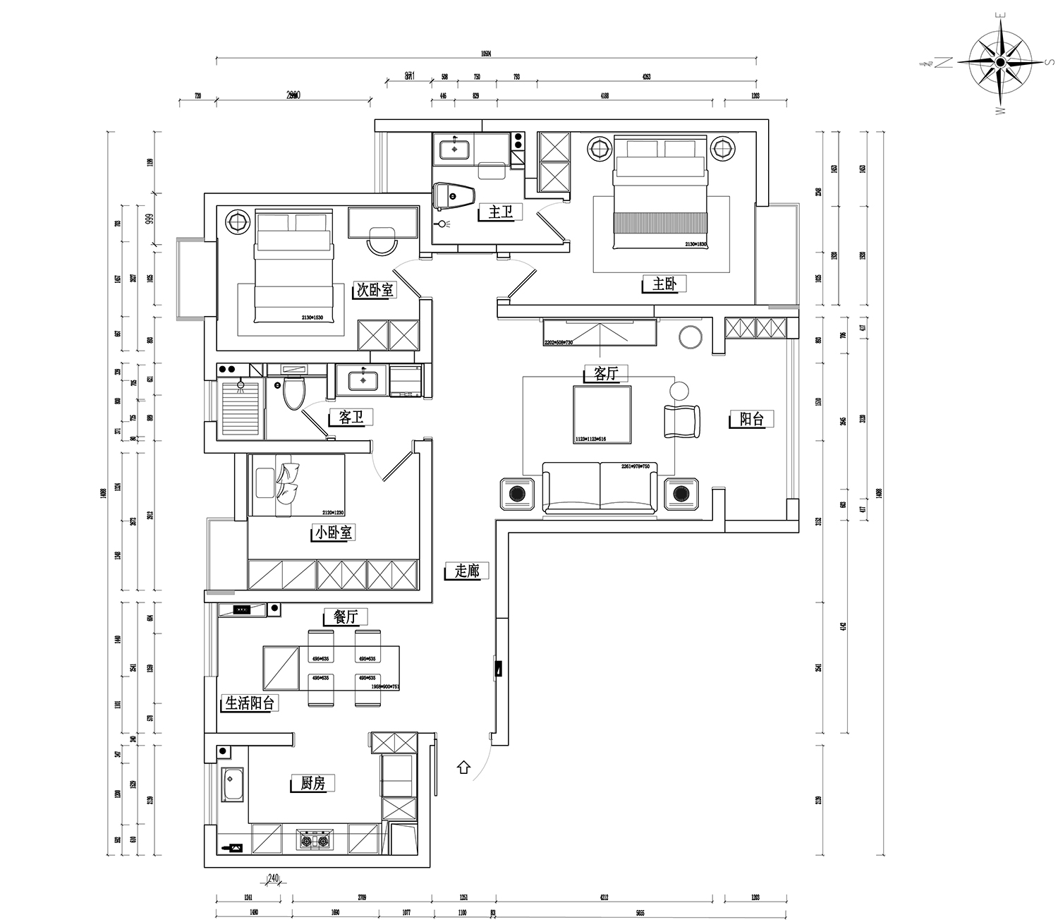
万科城市花园  135平 美式
万科城市花园 135平 美式

设计理念:新婚燕尔小两口对自己家的向往是美好的温暖的纯净的,喜欢美式风格的温和感。

本案特点:案例出发点为美式风格,以喜爱的白色为主家具有定向品牌,本案以家居风格感觉为主线定制设计达到完整一体的理想感觉